Oggi è venerdì 20 febbraio 2026, 22:19

Tutti gli orari sono UTC + 1 ora [ ora legale ]




Apri un nuovo argomento Rispondi all’argomento  [ 35 messaggi ]  Vai alla pagina Precedente  1, 2, 3  Prossimo
Autore Messaggio
 Oggetto del messaggio: Re: cabina scambi "tipo mussolini"....
MessaggioInviato: martedì 29 maggio 2012, 19:26 
Non connesso

Iscritto il: mercoledì 30 agosto 2006, 8:49
Messaggi: 1038
Località: All'ombra del Pratomagno
Marcello (PT) ha scritto:
come questa?


La prima che hai postato, Marcello, mi piace particolarmente.
Dove è situata?
Vorrei capire il tipo di stazione in cui può essere allocata.

Ciao


Top
 Profilo  
 
 Oggetto del messaggio: Re: cabina scambi "tipo mussolini"....
MessaggioInviato: martedì 29 maggio 2012, 19:43 
Non connesso

Iscritto il: lunedì 20 febbraio 2006, 22:54
Messaggi: 976
cavoli, grazie a tutti per le foto e complimenti ai realizzatori!!! veramente molto molto belle!!!!! ho molti spunti e idee ora...


Top
 Profilo  
 
 Oggetto del messaggio: Re: cabina scambi "tipo mussolini"....
MessaggioInviato: martedì 29 maggio 2012, 20:25 
Non connesso

Iscritto il: giovedì 24 gennaio 2008, 18:40
Messaggi: 2135
Località: piemonte
snajper ha scritto:
Lo fanno solo perchè divisa e pistola li fa sentire onnipotenti.

Per carità, non intendevo minimamente essere polemico!
Resta il fatto che il mio hobby fermodellistico contempla anche il piacere di rilevare e restituire graficamente edifici e architetture prettamente ferroviarie, per poi ricavarne i disegni esecutivi per realizzazioni future che probabilmente non vedranno mai la luce. Il tempo é quello che é, e non é dilatabile. Ma spesso, senza alcun motivo plausibile, mi capita di essere allontanato senza troppi complimenti. E si che se non proprio "di bell'aspetto" non mi presento in maniera inquietante. In ogni caso, prima di qualsiasi mossa mi reco a chiedere il permesso di fotografare al personale. Alle volte sono accolto in maniera veramente cordiale, altre, come in questo caso, No! Mi riprometto sempre di chiedere i permessi necessari al responsabile della direzione territoriale competente, ma occorre scrivere con carta e penna e calamaio, no internet e allora i tempi si dilatano. E si che é sempre nelle premesse la mia disponibilità di mettere poi a disposizione copia del mio lavoro. Mah...
Insomma a rimetterci é jonnyblues, che se avessi avuto il rilievo un dxf non glielo negava nessuno.
Vivissimi complimenti per i modelli postati!


Top
 Profilo  
 
 Oggetto del messaggio: Re: cabina scambi "tipo mussolini"....
MessaggioInviato: mercoledì 30 maggio 2012, 8:48 
Non connesso

Iscritto il: giovedì 24 gennaio 2008, 18:40
Messaggi: 2135
Località: piemonte
Sul numero 268 della rivista i Treni, a pag. 56 c'é un articolo di Roberto Fornari dedicato alla costruzione del posto di blocco di Anzola dell'Emilia, anch'esso di epoca razionalista.


Top
 Profilo  
 
 Oggetto del messaggio: Re: cabina scambi "tipo mussolini"....
MessaggioInviato: mercoledì 30 maggio 2012, 9:42 
Non connesso

Iscritto il: mercoledì 5 aprile 2006, 16:11
Messaggi: 5022
Località: Pistoia
Cinese ha scritto:
Marcello (PT) ha scritto:
come questa?


La prima che hai postato, Marcello, mi piace particolarmente.
Dove è situata?
Vorrei capire il tipo di stazione in cui può essere allocata.

Ciao

E' a Crevalcore. Ma mi sembra vi sia anche ad Ostiglia, più o meno uguale.


Top
 Profilo  
 
 Oggetto del messaggio: Re: cabina scambi "tipo mussolini"....
MessaggioInviato: mercoledì 30 maggio 2012, 10:26 
Non connesso

Iscritto il: venerdì 19 gennaio 2007, 22:39
Messaggi: 47
Io l'ho riprodotta è stata una faticaccia ma poi sono stato ripagato dalla soddisfazione.


Allegati:
marco 210.jpg
marco 210.jpg [ 70.3 KiB | Osservato 2320 volte ]
marco 204.jpg
marco 204.jpg [ 74.38 KiB | Osservato 2320 volte ]
marco 202.jpg
marco 202.jpg [ 101.34 KiB | Osservato 2320 volte ]
Top
 Profilo  
 
 Oggetto del messaggio: Re: cabina scambi "tipo mussolini"....
MessaggioInviato: mercoledì 30 maggio 2012, 10:37 
Non connesso

Iscritto il: venerdì 19 gennaio 2007, 22:39
Messaggi: 47
ho fatto anche queste...


Allegati:
CIMG3406 - Copia.JPG
CIMG3406 - Copia.JPG [ 232.28 KiB | Osservato 2317 volte ]
CIMG2047 - Copia.JPG
CIMG2047 - Copia.JPG [ 102.42 KiB | Osservato 2317 volte ]
ROTABILI MARCO 059.jpg
ROTABILI MARCO 059.jpg [ 81.16 KiB | Osservato 2317 volte ]
CIMG3238.JPG
CIMG3238.JPG [ 154.13 KiB | Osservato 2317 volte ]
Top
 Profilo  
 
 Oggetto del messaggio: Re: cabina scambi "tipo mussolini"....
MessaggioInviato: mercoledì 30 maggio 2012, 12:13 
Non connesso
Avatar utente

Iscritto il: sabato 1 dicembre 2007, 15:51
Messaggi: 5917
Località: TROPEA(VV)
centu ha scritto:
Axel l'ha fatta poco tempo fa.
prova a sentire lui :wink:

Dato che sono stato citato,ecco la cabina che ho fatto io :wink:
PS: Complimenti per gli altri modelli :)


Allegati:
cabina b.jpg
cabina b.jpg [ 37.19 KiB | Osservato 2297 volte ]
Top
 Profilo  
 
 Oggetto del messaggio: cabina scambi "tipo mussolini"....
MessaggioInviato: mercoledì 30 maggio 2012, 20:01 
Non connesso

Iscritto il: lunedì 25 luglio 2011, 20:54
Messaggi: 511
Località: Milano
Forse non vi e' noto, ma per una vecchia legge dei tempi della monarchia, fotografare treni e fabbricati senza averne autorizzazione e' considerato spionaggio...


Top
 Profilo  
 
 Oggetto del messaggio: cabina scambi "tipo mussolini"....
MessaggioInviato: mercoledì 30 maggio 2012, 20:10 
Non connesso

Iscritto il: lunedì 25 luglio 2011, 20:54
Messaggi: 511
Località: Milano
Comunque, pare che le cose siano cambiate, almeno secondo quello che si scrive qui:
http://www.millenuvole.org/i/s/vietato_ ... piede.html
Certo poi tocca sperare di non avere a che fare con i soliti funzionari/poliziotti etc zelanti e pure poco informati...


Top
 Profilo  
 
 Oggetto del messaggio: Re: cabina scambi
MessaggioInviato: giovedì 31 maggio 2012, 20:32 
Non connesso

Iscritto il: domenica 15 luglio 2007, 9:46
Messaggi: 6798
Località: Regione FVG
Snaggletooth ha scritto:
Comunque, pare che le cose siano cambiate, almeno secondo quello che si scrive qui:
http://www.millenuvole.org/i/s/vietato_ ... piede.html
Certo poi tocca sperare di non avere a che fare con i soliti funzionari/poliziotti etc zelanti e pure poco informati...

Il problema è che la maggior parte dei nuovi operatori di "bassa forza" della polizia, in genere, non solo ferroviaria, sono ex militari, spesso con esperienze tipo Afganistan o Iraq, per cui loro credono davvero di avere di fronte dei potenziali terroristi! :roll:
Sono ormai 8 anni che i concorsi per poliziotti sono aperti solo ai militari delle FFAA, non importa che la PS non sia militare.
Ovvio che questo rambismo abbia contagiato anche chi c'era già dentro (vedere Spaccarotella: un poliziotto che sappia quel che fa non si metterebbe a sparare attraverso un'autostrada, nemmeno se dall'altra parte ci fosse una rivolta).


Top
 Profilo  
 
 Oggetto del messaggio: Re: cabina scambi
MessaggioInviato: martedì 5 giugno 2012, 10:33 
Non connesso

Iscritto il: venerdì 13 gennaio 2006, 3:48
Messaggi: 1078
Località: 'Lisondria...
snajper ha scritto:
Snaggletooth ha scritto:
Comunque, pare che le cose siano cambiate, almeno secondo quello che si scrive qui:
http://www.millenuvole.org/i/s/vietato_ ... piede.html
Certo poi tocca sperare di non avere a che fare con i soliti funzionari/poliziotti etc zelanti e pure poco informati...

Il problema è che la maggior parte dei nuovi operatori di "bassa forza" della polizia, in genere, non solo ferroviaria, sono ex militari, spesso con esperienze tipo Afganistan o Iraq, per cui loro credono davvero di avere di fronte dei potenziali terroristi! :roll:
Sono ormai 8 anni che i concorsi per poliziotti sono aperti solo ai militari delle FFAA, non importa che la PS non sia militare.
Ovvio che questo rambismo abbia contagiato anche chi c'era già dentro (vedere Spaccarotella: un poliziotto che sappia quel che fa non si metterebbe a sparare attraverso un'autostrada, nemmeno se dall'altra parte ci fosse una rivolta).


Evitiamo di dire certe stupidaggini?
Non è certo un anno nell'esercito che ti rende scemo o ti fa diventare rambo...
Ciò non toglie che di mele marce ce n'è a iosa... ;-)


Top
 Profilo  
 
 Oggetto del messaggio: Re: cabina scambi
MessaggioInviato: martedì 5 giugno 2012, 18:37 
Non connesso

Iscritto il: domenica 15 luglio 2007, 9:46
Messaggi: 6798
Località: Regione FVG
Giacomo ha scritto:
snajper ha scritto:
Snaggletooth ha scritto:
Comunque, pare che le cose siano cambiate, almeno secondo quello che si scrive qui:
http://www.millenuvole.org/i/s/vietato_ ... piede.html
Certo poi tocca sperare di non avere a che fare con i soliti funzionari/poliziotti etc zelanti e pure poco informati...

Il problema è che la maggior parte dei nuovi operatori di "bassa forza" della polizia, in genere, non solo ferroviaria, sono ex militari, spesso con esperienze tipo Afganistan o Iraq, per cui loro credono davvero di avere di fronte dei potenziali terroristi! :roll:
Sono ormai 8 anni che i concorsi per poliziotti sono aperti solo ai militari delle FFAA, non importa che la PS non sia militare.
Ovvio che questo rambismo abbia contagiato anche chi c'era già dentro (vedere Spaccarotella: un poliziotto che sappia quel che fa non si metterebbe a sparare attraverso un'autostrada, nemmeno se dall'altra parte ci fosse una rivolta).


Evitiamo di dire certe stupidaggini?
Non è certo un anno nell'esercito che ti rende scemo o ti fa diventare rambo...
Ciò non toglie che di mele marce ce n'è a iosa... ;-)

Cerchiamo di chiudere la questione (o dovremmo aprirne una in Off Topic :wink: ): col VFP1 non ci riesci a diventare poliziotto (carabinere, pompiere, guardia carceraria, forestale...), perchè bisogna essere in servizio alle armi al momento del concorso per la forza dell'ordine e non sempre accade. Chi fa il VFP4 dopo il VFP1 ha qualche chance in più, ma quel ruolo già può portare a situazioni di combattimento che lasciano il segno. Nel bene, ma possono anche nel male.
Concorsi per le FFOO che non richiedano di essere stati soldati ci dovrebbero essere, ma solo per ruoli più alti (per i CC, marescialli, per la PS non so la corrispondenza dei gradi). Non sono quelli che cacciano i fotografi dalle stazioni, per capirci.
Peraltro pare che chi voglia fare davvero il soldato oggi accarezzi di più l'idea della Legione Straniera :shock: . Non so perchè, ma di italiani lì che ne sono una sessantina...


Top
 Profilo  
 
 Oggetto del messaggio: Re: cabina scambi "tipo mussolini"....
MessaggioInviato: martedì 5 giugno 2012, 21:16 
Non connesso

Iscritto il: giovedì 13 aprile 2006, 11:34
Messaggi: 1803
Località: San Remo
Aggiungo questa che trovo molto bella.
La foto, purtroppo, non ricordo da dove arrivi: chiedo scusa in anticipo all'autore.
Riccardo


Allegati:
Commento file: P.M. Terontola-Cortona
P. B. Terontola-Cortona.jpg
P. B. Terontola-Cortona.jpg [ 91.54 KiB | Osservato 2056 volte ]
Top
 Profilo  
 
 Oggetto del messaggio: Re: cabina scambi "tipo mussolini"....
MessaggioInviato: martedì 7 luglio 2015, 21:57 
Non connesso

Iscritto il: lunedì 27 febbraio 2006, 18:00
Messaggi: 1508
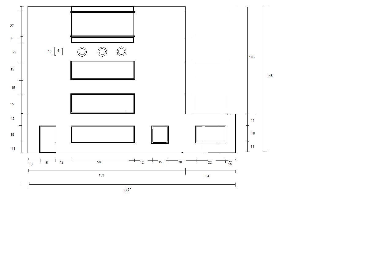
In rete ho trovato questi disegni,sono in scala 1/87 ma per una cabina del genere non vi sembra un po troppo piccola?Grazie saluti.


Allegati:
CABINA5.jpg
CABINA5.jpg [ 37.11 KiB | Osservato 1718 volte ]
CABINA4.jpg
CABINA4.jpg [ 41.15 KiB | Osservato 1718 volte ]
CABINA3.jpg
CABINA3.jpg [ 46.88 KiB | Osservato 1718 volte ]
Top
 Profilo  
 
Visualizza ultimi messaggi:  Ordina per  
Apri un nuovo argomento Rispondi all’argomento  [ 35 messaggi ]  Vai alla pagina Precedente  1, 2, 3  Prossimo

Tutti gli orari sono UTC + 1 ora [ ora legale ]


Chi c’è in linea

Visitano il forum: Bing [Bot], Google [Bot], sstefano55 e 23 ospiti


Non puoi aprire nuovi argomenti
Non puoi rispondere negli argomenti
Non puoi modificare i tuoi messaggi
Non puoi cancellare i tuoi messaggi
Non puoi inviare allegati

Cerca per:
Vai a:  
banner_piko

Duegi Editrice - Via Stazione 10, 35031 Abano Terme (PD). Italy - Tel. 049.711.363 - Fax 049.862.60.77 - duegi@duegieditrice.it - shop@duegieditrice.it
Direttore editoriale: Luigi Cantamessa - Amministratore unico: Federico Mogioni - Direttore responsabile: Pietro Fattori.
Registro Operatori della Comunicazione n° 37957. Partita iva IT 05448560283 Tutti i diritti riservati Duegi Editrice Srl