gtaga ha scritto:
Buongiorno Bomby, innanzitutto grazie mille per l’interessamento.
Ciao gtaga (un nome? Io mi chiamo Davide ma tutti mi chiamano Bomby, il tuo nick mi suona ostico

). Diciamo che stai prendendo tutti gli approcci sbagliati possibili ed inimmaginbili, almeno per come la vedo io

. Però io non ho in mano il vangelo e non obbligo nessuno a seguire i miei consigli, sia chiaro

.
gtaga ha scritto:
Veniamo al dunque partendo dal fondo: per ora l’aspetto economico lasciamolo da parte.
E invece è importante! Inutile girarci intorno, costruire un plastico è un affare costoso, e non poco. Se uno fa progetti faraonici e poi gli mancano i soldi...
gtaga ha scritto:
La collocazione temporale è senza dubbio compresa nel decennio 1985-1995 in modo da poter far circolare, presumo, anche qualche composizione da fine anni ’70 a inizio anni 2000, ovviamente amministrazione FS e concesse, in scala HO;
Amministrazione da FS a concessa cambia molto, moltissimo. Da quello che scrivi dopo si potrebbe pensare ad una stazione di amministrazione FS a cui fa capo anche una linea concessa. L'ambientazione 1985-1995 ci sta. Poi, non visti, ci si può far circolare sopra anche qualche treno un filo fuori epoca.
gtaga ha scritto:
l’ambientazione paesaggistica è in sospeso finché non avrò definito le modalità di esercizio (non so se faccio bene a ragionare così, ma considerando il “problema spazio” preferisco prima razionalizzare il tracciato e poi pensare all’ambientazione in funzione di esso).
Questo secondo me è un errore metodologico. La ferrovia vera esiste perchè esiste il contesto geografico. Se noi vogliamo riprodurre la realtà, ne dobbiamo tenere conto. L'Italia da Nord a Sud è diversissima, non solo a livello geografico, ma anche come caratteristiche delle infrastrutture ferroviarie. Definire un'area geografica aiuta moltissimo, fidati. E' un modo di procedere molto più naturale rispetto a quello che tu ipotizzi, e che porta a risultati molto più naturali e convincenti. Sempre partire dal vero e arrivare al modello, anche manipolandolo, il vero.
gtaga ha scritto:
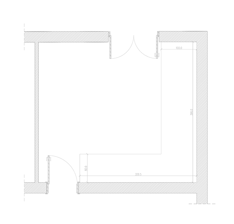
Lo spazio a disposizione è appunto una L da 4x3,30 puliti, senza porte/finestre: la profondità è invece vincolata a 105 centrimetri per il lato di lunghezza 4 metri a causa della presenza di una porta.
Bene. Diciamo che 105 cm possono essere sufficienti per realizzare un cappio, anche se sarebbe meglio averne un po' di più. C'è di bello che si può provare ad allargare un po' il piano del plastico per fare spazio ai binari. Non sta scritto da nessuna parte che il piano di un plastico debba essere per forza rettangolare, anzi. Dipende sempre da come è incernierata la porta.
gtaga ha scritto:
Per quanto riguarda l’esercizio, vorrei simulare il traffico passeggeri tra più direttrici; non sono interessato al traffico ed alle manovre merci (se avanzerà un angolo in cui non saprò cosa fare magari potrei pensare ad un mini scalo merci, in caso contrario pazienza).
Dunque un plastico passerella. In ogni caso lo scalo ci vuole, era una presenza costante in tutte le stazioni italiane, specie all'epoca in cui in alcuni casi erano ancora molto usati. Poi che tu lo voglia usare, pazienza... Per dire, anche Milano Centrale ce l'aveva, lo scalo merci Grande Velocità.
gtaga ha scritto:
Spazio permettendo, vorrei predisporre questi elementi: lungo la parete da 400 cm metterei una coulisse (che idealmente rappresenta la stazione di un capoluogo di provincia da cui partono regionali da 115/120 cm per convogli con 3 MDVC/PR/2P/ più loco) e una stazione pseudopassante (3 binari, di cui due da 120 cm, più due tronchini), connessa alla coulisse, da cui parte una linea secondaria non elettrificata (il materiale rotabile preposto a questa tratta saranno principalmente ALn668) verso una stazione di testa situata lungo la parete da 330 cm. In questa stazione di testa vorrei far confluire tre linee: quella secondaria che arriva dalla stazione pseudopassante, e altre due (che praticamente è una sola grande racchetta) che, una da un lato e una dall’altro, costeggiando il perimetro interno una ed esterno l’altra, scendono di una decina di cm si raccordano nella stazione nascosta che, in questo modo sarebbe anche una racchetta per l’inversione dei convogli. Così potrei avere anche una sorta di linea di parata lungo il perimetro interno del plastico, mentre quella lungo il perimetro esterno (lato pareti) verrebbe coperta quasi subito.
Onestamente, sono partito dalla configurazione del plastico PaP Altavilla-Fiorano di TTM e, potendo disporre di qualche cm in più come profondità, ho pensato di integrarlo appunto con una linea “vera” che gira intorno, in cui far circolare convogli anche di 4/5 carrozze (utopia).
Per ora è quanto, spero di non aver esagerato, date le dimensioni.
Prima dimmi le cose che mancano, che al tracciato ci pensiamo dopo. Ti stai complicando la vita, cercando di infilare a calci cose a caso nello spazio che hai a disposizione, credimi.
Tu sei partito da un plastico pensato per fare manovre e vuoi fare esercizio passerella. Ufficio complicanze affari semplici!
Passo-passo si fa tutto con ordine.